0
fr
VUE SUR VERT Agence
Télécharger la fiche

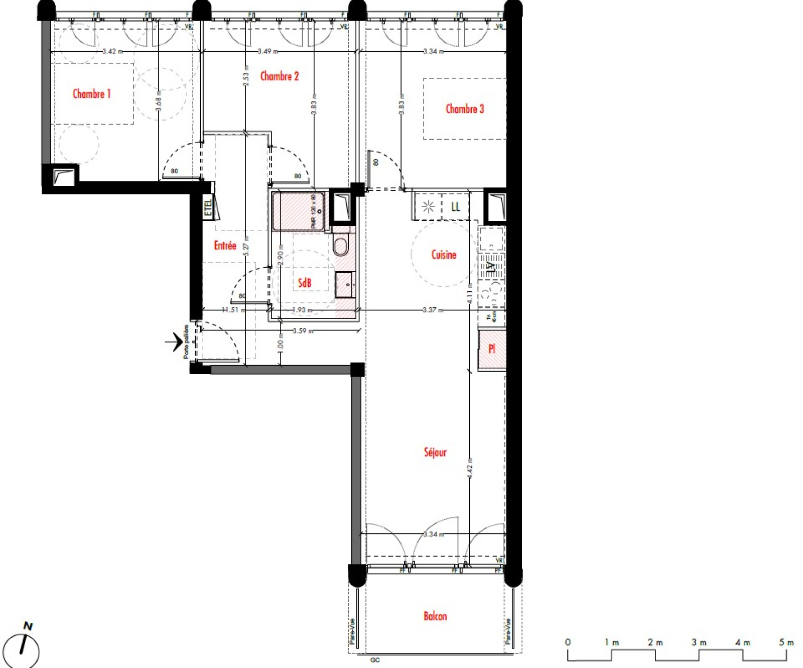
Appartement 4 pièce(s) 3 chambre(s) 79 m²

Marseille (13005)
299 869 € Référence 74

A propos de ce bien

Vue sur Vert vous propose cet appartement neuf aménageable en T3 ou T4 de 79,24 m2 en vente sur plan personnalisable et évolutif, avec un balcon-terrasse de 6,4 m2, au 6e et dernier étage d’un petit immeuble avec de nombreux espaces partagés (jardin de 135 m2, salle commune de 28 m2, local vélo de 31 m2 et toit-terrasse accessible de 198 m2) qui sera construit à proximité de la gare de la Blancarde.

L’aménagement intérieur offre des pièces avec de grands volumes, baignés de lumière et avec des matériaux de qualité.

Entre les quartiers Blancarde et Ste Thérèse, à 2 minutes à pied du tramway [T1 & T2], à 5 minutes du métro [M1] et de la gare de la Blancarde, avec des commerces, écoles et services à proximité quand un quartier calme, loin des grands axes et à taille humaine.

Pour plus d’infos ou organiser une visite, contactez-nous par téléphone ou message.

Réservé à la résidence principale. Accessible en Bail Réel Solidaire (BRS) sous conditions de ressources. Grâce au dispositif BRS, vous accédez à la propriété à prix maîtrisé avec une TVA réduite à 5,5%, et des frais de notaires réduits.

Caractéristiques de ce bien

  • Surface 79 m²
  • carrez 79 m²
  • 3 chambre(s)
  • 1 salle(s) d'eau
  • construit en 2026
  • cuisine américaine
  • exposition Sud
  • 6ème étage
  • 6 étage(s)
  • ascenseur
  • balcon
  • accès handicapé

Diagnostics énergétiques

DPE
GES
DPE non concerné

Informations financières

Prix de vente honoraires TTC inclus 299 869 €

Informations de copropriété

Copropriété Oui

Calcul des mensualités

* Champs obligatoires