0
fr
VUE SUR VERT Agence
Télécharger la fiche

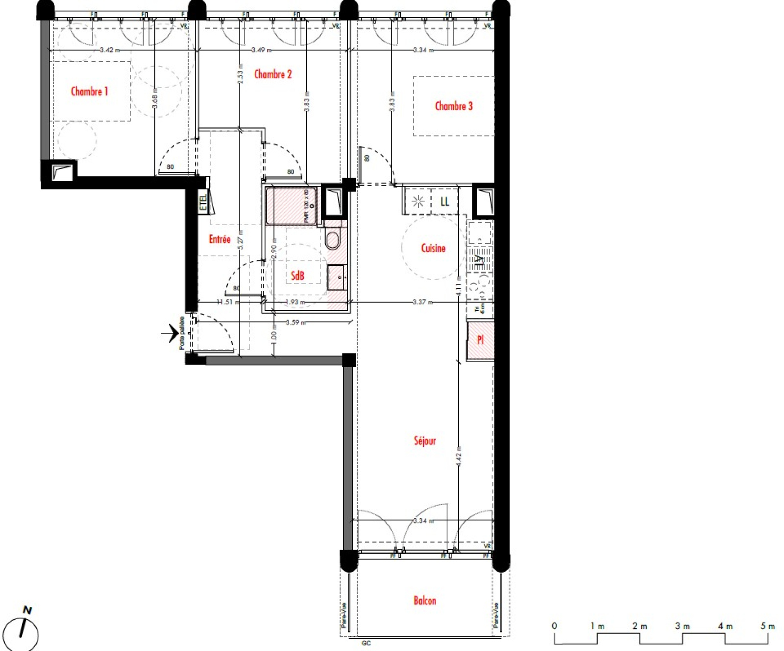
Appartement 4 pièce(s) 3 chambre(s) 79 m²

Marseille (13005)
265 388 € Référence 74

A propos de ce bien

Vue sur Vert vous propose cet appartement aménageable en T3 ou T4 de 79,24 m2 en vente sur plan personnalisable et évolutif, avec un balcon-terrasse de 6,4 m2, au 1er niveau d’un immeuble de 6 étages, avec de nombreux espaces partagés (jardin de 135 m2, salle commune de 28 m2, local vélo de 31 m2 et toit-terrasse accessible de 198 m2) qui sera construit à proximité de la gare de la Blancarde.

L’aménagement intérieur offre des pièces avec de grands volumes, baignés de lumière et avec des matériaux de qualité.

À 2 minutes à pied du tramway 1 & 2, à 5 minutes du métro 1 et de la gare de la Blancarde, avec des commerces, écoles et services à proximité quand un quartier calme, loin des grands axes et à taille humaine.

Pour plus d’infos ou organiser une visite, contactez-nous par téléphone ou message.

Réservé à la résidence principale. Accessible en Bail Réel Solidaire (BRS) sous conditions de ressources. Grâce au dispositif BRS, vous accédez à la propriété à prix maîtrisé avec une TVA réduite à 5,5%, et des frais de notaires réduits.

Caractéristiques de ce bien

  • Surface 79 m²
  • carrez 79 m²
  • 3 chambre(s)
  • 1 salle(s) d'eau
  • construit en 2026
  • cuisine américaine
  • exposition Sud
  • 1er étage
  • 6 étage(s)
  • ascenseur
  • balcon
  • accès handicapé

Diagnostics énergétiques

DPE
GES
DPE non concerné

Informations financières

Prix de vente 265 388 € Les honoraires d'agence seront intégralement à la charge du vendeur

Calcul des mensualités

* Champs obligatoires